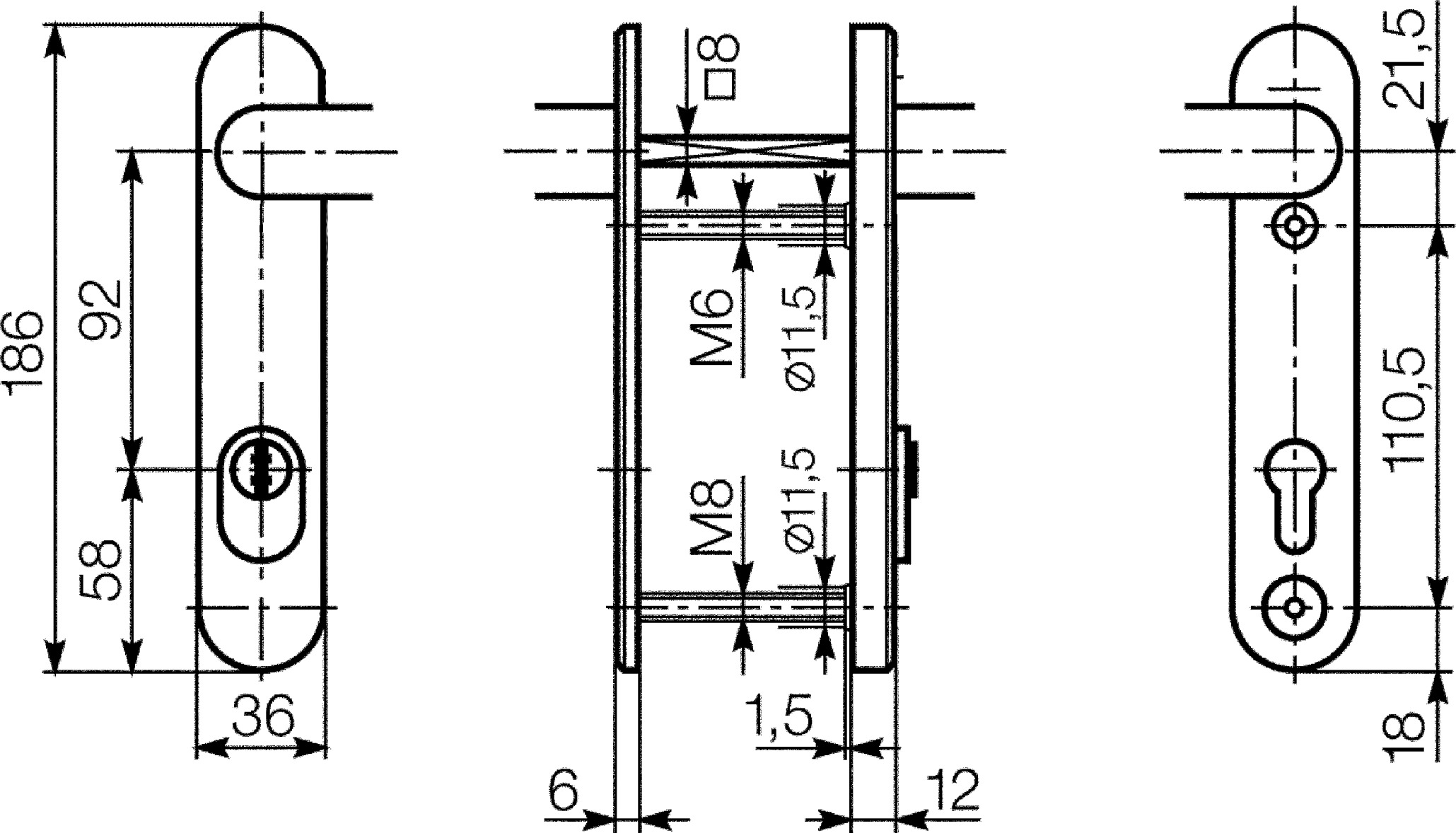
Stahl-Schutzbeschlag mit Zylinderabdeckung - Drücker/Drücker S6B3,VAR=FS

Kurzschild für Rohrrahmentüren mit durchgehender Verschraubung

Produktbeschreibung

  • Entfernung 92 mm
  • 9 mm Vierkant
  • Für Zylinderüberstand von 9 bis 15,5 mm
  • Aussenschildstärke 12 mm - Innenschildstärke 6 mm
  • Material Außenschild: Stahl massiv, einsatzgehärtet
  • Material Innenschild: Stahl massiv
  • Zweifache Verschraubung
  • Drücker Aluminium eloxiert mit Stahlkern
  • Drücker farblich passend zu den Schildern
  • Für Feuerschutztüren geeignet

Lieferumfang

  • 1 Garnitur mit Befestigungsmaterial

Hinweis

  • Die IKON Stahl-Schutzbeschläge für Rohrrahmentüren entsprechen in ihren wesentlichen Konstruktions- und Qualitätsmerkmalen den IKON Stahl- Schutzbeschlägen der Serie S4.. .
  • Bei der Beschlagvariante VAR=FS handelt es sich um einen vom MPA Dortmund überwachten Feuerschutzbeschlag

Bestellhinweis

  • Für die Verwendung von IKON Profil-Schließzylindern im Profil ARCUS, AEP10, ASP und R10 bestellen Sie bitte VAR=A
Bestellbare Varianten
ArtikelnummerFB=TS=
S6B3,VAR=FS F1 50
F1 60